Лекция
архитектурная графика — направление изобразительного искусства, охватывающее творческий процесс представления идей и образов в области проектирования и архитектурного дизайна. Это детальная разработка план а будущего здания в чертеж е с масштабом (или сада для ландшафтного архитектора) с использованием условных обозначений будущих фундаментов, стен, пилонов или колонн, с пометкой будущих окон, дверей. Генеральный план позволяет показать расположение здания или ансамбль зданий на местности с указанием сторон света. Чертеж архитектора тесно связан с математическими расчетами и указаниями размеров будущего здания, соотношения его частей (масштаб). Используется как в проектировании новых построек, так при разработке фиксационных планов существующих или разрушенных зданий.
Первые чертежи были созданы еще в Древнем Египте, где сложилась сильная школа математиков и геометров.
Проектирование архитектурного объекта не может обходиться без изобразительного отображения замыслов архитектора в графике и объемных моделях

рассмотрим виды архитекрурной графики подробнее
Архитектурная графика охватывает широкий спектр визуальных средств, используемых для выражения идей, форм и пространств в архитектуре. Вот основные виды архитектурной графики, классифицированные по назначению и технике:
эскиз ная графика — быстрые наброски, отражающие идею, настроение или композицию будущего объекта.
Проектная графика — включает планы, фасады, разрез ы, выполненные по правилам начертательной геометрии.
Рабочие чертежи — точные технические документы для строительства, с размерами, материалами и узлами.
Демонстрационная графика — визуализации для презентации проекта заказчику или публике.
Архитектурный рисунок — художественные изображения зданий, интерьеров или городских сцен, часто выполненные вручную.
Линейная графика — построение изображения с помощью линий и штриховок (карандаш, тушь, перо).
Тональная графика — передача светотени и объема с помощью оттенков (акварель, гуашь, пастель).
Цветная графика — использование насыщенных цветов, часто в сочетании с коллажами или цифровыми средствами.
Цифровая графика — создание изображений с помощью программ (AutoCAD, Revit, Photoshop, SketchUp и др.).
Классическая графика — ручные техники: акварель, тушь, карандаш, гуашь, перо.
Клаузура — учебный эскиз, выполненный за ограниченное время.
Антураж и стаффаж — добавление людей, деревьев, мебели для оживления сцены.
Архитектурная фантазия — свободные, нереалистичные композиции, часто с элементами воображения.
Эскиз — изобразительная форма проектного поиска, которая в большинстве случаев исполняется автором от руки. Эскизирование — это процесс, прогнозирующий черты будущего сооружения. Организация этого процесса зависит от индивидуальных творческих особенностей архитектора, традиций профессиональной среды и архитектурной школы, в которой формировалась личность зодчего.


РИСУНОК
• Архитектурный рисунок— любое рисованное произведение архитектора, назначение которого не обязательно преследует профессиональные цели.
• Сюжет архитектурногорисунка может иметь самостоятельное значение (
набросок с натуры, графический рисунок — иллюстрация и т. д.), но может быть
составной частью чертежа, эскиза

ПОИСКОВЫЙ НАБРОСОК
• Традиционные проектнографические средства – наброски.
• Для наброска, который выполняется за короткий промежуток времени, характерна определенная условность и лаконичность изображения, раскрывающая только основной замысел автора.

ПОИСКОВЫЙ РИСУНОК
• В поисковом рисунке изображение проектируемого объекта, его деталей и отдельных узлов, монохромное с привлечением минимума изобразительных средств

Задачу выявления архитектурных и конструктивных особенностей хорошо выполняет чертеж. Детальный чертеж дома Архитектурный чертеж — это изображение, передающее информацию о размере, форме и конструкции объекта.
Чертеж — это условное изображение объекта(здания, сооружения или конструкции), выполненное по определенным правилам с помощью чертежных инструментов или программных средств.
На чертеже показывают несколько видов изделия. Виды выполняют, исходя из того, как наблюдают изделие: спереди, сверху или слева (сбоку), планы, разрезы, проекции.
Виды чертежа:
В современном чертеже построение объекта обязательно исполняется по законам начертательной геометрии.



Часто обекты изображают увеличенным или уменьшенным по сравнению с оригиналом. Но несмотря на это, размеры на чертеже проставляют действительные.
Число, которое показывает, во сколько раз уменьшены или увеличены действительные размеры, называют масштабом.
эскиз — изображение предмета, выполненное от руки по тем же правилам, что и чертеж, но без соблюдения точного масштаба. При составлении эскиза сохраняетсясоотношение между частями предмета.
Технический рисунок — наглядное изображение объекта , выполненное от руки теми же линиями, что и чертеж, с указанием размеров и материала, из которого изготовлено объект.
Его строят приближенно, на глаз, выдерживая соотношения между отдельными частями объекта .
Число видов на чертеже (эскизе) должно быть таким, чтобы давать полное представление о форме предмета.
РАЗВЕРТКИ
развертка – чертеж плоской заготовки из которой складывают объемную форму конструкции

Объемное макет ирование позволяет рассмотреть строение из любого ракурса. Объекты объемной архитектоники представляются как в качестве одного объема, или слитной формой, так и группой отдельных частей,

Существуют определенные правила простановки размеров.
Размер (в миллиметрах) проставляют над размерной линией слева направо и снизу вверх. Наименование единиц измерения не указывают.
Толщину детали обозначают латинской буквой S; цифра, стоящая справа от этой буквы, показывает толщину детали в миллиметрах.
К определенным правилам относится и обозначение на чертеже диаметра отверстия – его обозначают символом Ø.
Радиусы окружностей обозначают латинской буквой R; цифра, стоящая справа от этой буквы, показывает радиус окружности в миллиметрах.
Контур детали на чертеже (эскизе) надо показывать сплошными толстыми основными линиями (линиями видимого контура);
размерные линии — сплошными тонкими; линии невидимого контура — штриховыми; осевые — штрихпунктирными и т.д

Здание, или какое либо сооружение в плане разделяется условными осевыми линиями на ряд сегментов. Данные линии определяющие положение основных несущих конструкций, называются продольными и поперечными координационными осями.
Интервал между координационными осями в плане здания называют шагом, а по преобладающему направлению шаг может быть продольным или поперечным.
Маркировка координационных осей
В том случае если расстояние, между координационными продольными осями, совпадает с пролетом, перекрытием или покрытием, основной несущей конструкции, то этот интервал называют пролетом.

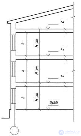
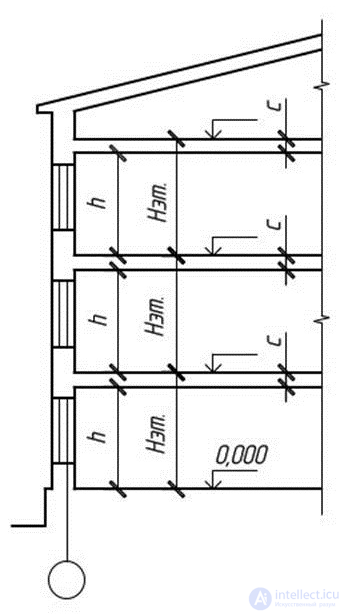
Высота этажа в многоэтажном жилом доме
За высоту этажа Н эт принимается расстояние от уровня пола выбранного этажа до уровня пола вышерасположенного этажа. По тому же принципу определяют и высоту верхнего этажа, при чем толщину перекрытия чердака принимают условно равной толщине междуэтажного перекрытия с. В промышленных одноэтажных строениях высота этажа равна расстоянию от пола до нижней поверхности конструкции покрытия.
С целью определения взаимного расположения частей здания используют сетку координационных осей, определяющую несущие конструкции данного строения.
Координационные оси наносятся штрих пунктирными тонкими линиями и маркируются внутри окружностей диаметром от 6 до 12 мм.

Высота этажа в одноэтажном здании
Маркировка координационных осей производится арабскими цифрами и прописными буквами, за исключением символов: 3 , Й, О, X , Ы, Ъ, Ь.
Высота шрифта обозначающего координационные оси выбирается на один-два номера больше, чем величина чисел на этом же листе.
Цифрами обозначают оси по стороне здания с наибольшим количеством координационных осей.
Направление маркировки осей наносят с лева на право, по горизонтали и снизу вверх, по вертикали.
Маркировка осей располагается, как правило, по левой и нижней сторонам плана здания.
Координационную ось наружной стены располагают на расстоянии, а = 100 мм , соблюдая отступ для установки плит перекрытия.

Координационные оси наружных и внутренних стен
Построение основных элементов зданий выполняется с использованием модульной координации размеров в строительстве(МКРС), в соответствии с которой размеры основных объемно-планировочных элементов здания должны быть кратны модулю.
Основной модуль принят равным 100 мм.
Основные конструктивные элементы (несущие стены, колонны) здания располагаются вдоль модульных координационных осей (продольных и поперечных). Расстояние между координационными осями в малоэтажных зданиях принимаются кратными модулю 3М (300 мм).
Для определения взаимного расположения элементов здания применяется сетка координационных осей .
Координационные оси наносятся штрихпунктирными тонкими линиями и обозначаются, как правило, по левой и нижней сторонам плана, маркируются, начиная с левого нижнего угла арабскими цифрами (слева направо) и прописными буквами русского алфавита (снизу вверх) в кружках диаметром 6 … 12 мм (рис. 2).
Рис. 2. Пример маркировки координационных осей

Размеры на строительных чертежах проставляются в миллиметрах и наносятся, как правило, в виде замкнутой цепочки.
Размерные линии ограничиваются засечками – короткими штрихами длиной 2 … 4 мм, проводимыми с наклоном вправо под углом 45° к размерной линии. Размерные линии должны выступать за крайние выносные линии на 1 … 3 мм. Размерное число располагается над размерной линией на расстоянии 1 … 2 мм (рис. 3, а).
Для обозначения положения секущей плоскости разреза или сечения здания применяется разомкнутая линия в виде отдельных утолщенных штрихов с указанием стрелками направления взгляда. Линию разреза обозначают арабскими цифрами (рис. 3, в). Начальный и конечный штрихи не должны пересекать контур изображения.
Размеры зданий по высоте (высота этажей) назначаются кратными модулям. Высота этажа здания определяется как расстояние от уровня пола данного этажа до уровня пола вышележащего этажа. В проектах жилых зданий высота этажа принимается равной 2,8; 3,0; 3,3 м.
На фасадах и разрезах наносятся высотные отметки уровня элемента или конструкции здания от какого-либо расчетного уровня, принимаемого за нулевой. Чаще всего за нулевой уровень (отметка ±0,000) принимается уровень чистого пола (покрытия пола) первого этажа.
Отметки уровней указываются в метрах с тремя десятичными знаками без обозначения единиц длины и помещаются на выносных линиях в виде стрелки с полкой. Стороны прямого угла стрелки проводятся сплошной толстой основной линией под углом 45° к выносной линии (рис. 4).

Рис. 3. Начертание размеров и положения разрезов:
а – размеров и размерных линий; б – стрелок направления взгляда;
в – положений разрезов

Рис. 4. Нанесение отметок уровня на видах:
а – размеры знака отметки уровня; б – примеры расположения и оформления
знаков уровня на разрезах и сечениях; в – то же, с поясняющими надписями;
г – пример изображения знака уровня на планах
Знак отметки может сопровождаться поясняющими надписями: Ур.ч.п. – уровень чистого пола; Ур.з. – уровень земли.
Отметки на планах наносятся в прямоугольниках (рис. 4, г). Отметки выше нулевого уровня обозначаются со знаком плюс (например, + 2,700), ниже нуля – со знаком минус (например, – 0,200).
В строительных чертежах приняты следующие наименования видов зданий.
В наименовании планов здания указывается отметка чистого пола этажа, номер этажа или обозначение соответствующей плоскости; при выполнении части плана – осей, ограничивающих эту часть, например:
План на отм. +3,000;
План 2 этажа;
План 3–3;
План на отм. 0,000 в осях 21–39, А–Д.
В наименовании разрезов здания указывается обозначение соответствующей секущей плоскости (арабскими цифрами), например, Разрез 1–1.
В наименовании фасадов здания указываются крайние оси, между которыми фасад расположен, например:
Фасад 1–5;
Фасад 12–1;
Фасад А–Г.
К многослойным конструкциям выполняются выносные надписи , располагаемые на полках прямой линии,
заканчивающейся стрелкой (рис. 5). Последовательность надписей (материал или конструкция слоев с указанием их толщины) к отдельным слоям должна соответствовать последовательности их расположения на чертеже сверху вниз и слева направо.
На линиях-выносках , заканчивающихся полкой, помещаются дополнительные пояснения к чертежу или номера позиций элементов в спецификации.

Рис. 5. Примеры выполнения выносных надписей
Графические обозначения материалов в сечениях и разрезах зданий и конструкций приведены в прил. 3. Расстояние между параллельными линиями штриховки выбираются в пределах 1 … 10 мм в зависимости от площади штриховки и масштаба изображения. Обозначения материалов не применяются на чертежах, если материал однороден, если размеры изображения не позволяют нанести условное обозначение.
Условные графические изображения элементов здания и санитарно-технических устройств приведены в прил. 4.
ГРАФИЧЕСКОЕ ОБОЗНАЧЕНИЕ МАТЕРИАЛОВ В РАЗРЕЗАХ, СЕЧЕНИЯХ И ВИДАХ


ГРАФИЧЕСКИЕ ИЗОБРАЖЕНИЯ ЭЛЕМЕНТОВ ЗДАНИЙ

Здание, или какое либо сооружение в плане разделяется условными осевыми линиями на ряд сегментов. Данные линии определяющие положение основных несущих конструкций, называются продольными и поперечными координационными осями.
Интервал между координационными осями в плане здания называют шагом, а по преобладающему направлению шаг может быть продольным или поперечным.

В том случае если расстояние, между координационными продольными осями, совпадает с пролетом, перекрытием или покрытием, основной несущей конструкции, то этот интервал называют пролетом.
За высоту этажа Н эт принимается расстояние от уровня пола выбранного этажа до уровня пола вышерасположенного этажа. По тому же принципу определяют и высоту верхнего этажа, при чем толщину перекрытия чердака принимают условно равной толщине междуэтажного перекрытия с. В промышленных одноэтажных строениях высота этажа равна расстоянию от пола до нижней поверхности конструкции покрытия.
С целью определения взаимного расположения частей здания используют сетку координационных осей, определяющую несущие конструкции данного строения.
Координационные оси наносятся штрих пунктирными тонкими линиями и маркируются внутри окружностей диаметром от 6 до12 мм. Диаметр кружков должен соответствовать масштабу чертежа: 6 мм — для 1:400 и менее; 8 мм — для 1:200 — 1:100; 10 мм — для 1:50; 12 мм для 1:25; 1:20; 1:10. Направление маркировки осей наносят с лева на право, по горизонтали и снизу вверх, по вертикали.
При несовпадении координационных осей противоположных сторон плана обозначения указанных осей в местах расхождения дополнительно наносят по верхней и/или правой сторонам. Для отдельных элементов, расположенных между координационными осями основных несущих конструкций, наносят дополнительные оси и обозначают их в виде дроби:
Допускается координационным осям фахверковых колонн присваивать цифровые и буквенные обозначения в продолжение обозначений осей основных колонн без дополнительного номера.

Привязка координационных осей происходит по правилам описаным в п.4 ГОСТ 28984-91 . Пример:
Привязку несущих стен из штучных материалов к координационным осям следует осуществлять с соблюдением следующих правил:
При опоре плит перекрытий на всю толщину несущей стены допускается совмещение наружной координационной плоскости стен с координационной осью (черт. 9г).

Маркировка координационных осей производится арабскими цифрами и прописными буквами, за исключением символов: 3, Й, О, X, Ы, Ъ, Ь . Цифрами обозначают оси по стороне здания с наибольшим количеством координационных осей. Маркировка осей располагается, как правило, по левой и нижней сторонам плана здания. Высота шрифта обозначающего координационные оси выбирается на один-два номера больше, чем величина чисел на этом же листе. Пропуски в цифровых и буквенных обозначениях координационных осей не допускаются.
На изображении повторяющегося элемента, привязанного к нескольким координационным осям, координационные оси обозначают в соответствии с рисунком:
При необходимости, ориентацию координационной оси, к которой привязан элемент, по отношению к соседней оси, указывают в соответствии с рисунком.

Правила оформления чертежей планов в соответствии с требованиями ЕСКД и СПДС (схематический чертеж):
Процесс отображения трехмерных обектов более сложный, чем соответствующий двумерный процесс. В двумерном случае просто задается окно в двумерном мировом координатном пространстве и поля вывода на двумерной видовой поверхности. В общем случае объекты, описанные в мировых координатах, отсекаются по границе видимого объема, а после этого преобразуются в поле вывода для дисплея. Сложность, характерная для трехмерного случая, возникает потому, что видовая поверхность не имеет третьего измерения для этого используются различные виды проекций.
В общем случае проекции преобразуют точки, заданные в системе координат размерностью n, в системы координат размерностью меньше чем n.
Будем рассматривать случай проецирования трех измерений в два. проекция трехмерного объекта (представленного в виде совокупности точек) строится при помощи прямых проекционных лучей, которые называются проекторами и которые проходят через каждую точку объекта и, пересекая картинную плоскость, образуют проекцию.

Рис. 3.7. Центральная и параллельная проекции
Определенный таким образом класс проекций существует под названием плоских геометрических проекций, так как проецирование производится на плоскость, а не на искривленную поверхность и в качестве проекторов используются прямые, а не кривые линии.
Многие картографические проекции являются либо не плоскими, либо не геометрическими.
Плоские геометрические проекции в дальнейшем будем называть просто проекциями.
Проекции делятся на два основных класса (рис. 3.7):
· параллельные (аксонометрические);
· центральные (перспективные).
Полная классификация проекций приведена на рис. 3.8.

Рис. 3.8. Классификация проекций
Параллельные проекции делятся на два типа в зависимости от соотношения между направлением проецирования и нормалью к проекционной плоскости (рис. 3.9.):
1) ортографические – направления совпадают, т. е. направление проецирования является нормалью к проекционной плоскости;
2) косоугольные – направление проецирования и нормаль к проекционной плоскости не совпадают.

Рис. 3.9. Ортографические и косоугольные проекции
Наиболее широко используемыми видами ортографических проекций является вид спереди, вид сверху(план) и вид сбоку, в которых картинная плоскость перпендикулярна главным координатным осям. Если проекционные плоскости не перпендикулярны главным координатным осям, то такие проекции называются аксонометрическими.
При аксонометрическом проецировании сохраняется параллельность прямых, а углы изменяются; расстояние можно измерить вдоль каждой из главных координатных осей (в общем случае с различными масштабными коэффициентами).
Изометрическая проекция – нормаль к проекционной плоскости, (а следовательно и направление проецирования) составляет равные углы с каждой из главных координатных осей. Если нормаль к проекционной плоскости имеет координаты (a,b,c), то потребуем, чтобы |a| = |b| = |c|, или ±a=±b=±c, т. е. имеется 8 направлений (по одному в каждом из октантов), которые удовлетворяют этому условию. Однако существует лишь 4 различных изометрических проекции (если не рассматривать удаление скрытых линий), так как векторы (a, a, a) и (-a,-a,-a) определяют нормали к одной и той же проекционной плоскости.
Изометрическая проекция (рис. 3.10.) обладает следующим свойством: все 3 главные координатные оси одинаково укорачиваются. Поэтому можно проводить измерения вдоль направления осей с одним и тем же масштабом. Кроме того, главные координатные оси проецируются так, что их проекции составляют равные углы друг с другом (120°).

Рис. 3.10. Изометрическая проекция единичного куба
Косоугольные (наклонные) проекции сочетают в себе свойства ортографических проекций (видов спереди, сверху и сбоку) со свойствами аксонометрии. В этом случае проекционная плоскость перпендикулярна главной координатной оси, поэтому сторона объекта, параллельная этой плоскости, проецируется так, что можно измерить углы и расстояния. Проецирование других сторон объекта также допускает проведение линейных измерений (но не угловых) вдоль главных осей. Отметим, что нормаль к проекционной плоскости и направление проецирования не совпадают.
Двумя важными видами косоугольных проекций являются проекции:
· Кавалье (cavalier) – горизонтальная косоугольная изометрия (военная перспектива);
· Кабине (cabinet) – фронтальная косоугольная диметрия.

Рис. 3.11. Проекция Кавалье
В проекции Кавалье (рис. 3.11.) направление проецирования составляет с плоскостью угол 45°. В результате проекция отрезка, перпендикулярного проекционной плоскости, имеет ту же длину, что и сам отрезок, т. е. укорачивание отсутствует.

Рис. 3.12. Проекция Кабине
Проекция Кабине (рис. 3.12.) имеет направление проецирования, которое составляет с проекционной плоскостью угол = arctg(½) (≈26,5°). При этом отрезки, перпендикулярные проекционной плоскости, после проецирования составляют ½ их действительной длины. Проекции Кабине являются более реалистическими, чем проекции Кавалье, так как укорачивание с коэффициентом ½ больше согласуется с нашим визуальным опытом.
Центральная проекция любой совокупности параллельных прямых, которые не параллельны проекционной плоскости, будет сходиться в точке схода. Точек схода бесконечно много. Если совокупность прямых параллельна одной из главных координатных осей, то их точка схода называется главной точкой схода. Имеются только три такие точки, соответствующие пересечениям главных координатных осей с проекционной плоскостью. Центральные проекции классифицируются в зависимости от числа главных точек схода, которыми они обладают, а следовательно и от числа координатных осей, которые пересекают проекционную плоскость.
1. Одноточечная проекция (рис. 3.13).

Рис. 3.13. Одноточечная перспектива
2. Двухточечная проекция широко применяется в архитектурном, инженерном и промышленном проектировании.

3. Трехточечные центральные проекции почти совсем не используются, во-первых, потому, что их трудно конструировать, а во-вторых, из-за того, что они добавляют мало нового с точки зрения реалистичности по сравнению с двухточечной проекцией.

Комментарии
Оставить комментарий
Видеоигровая архитектура
Термины: Видеоигровая архитектура